Le Projet

Le Projet L’Orée d'Atlas

Un programme immobilier unique à Marrakech

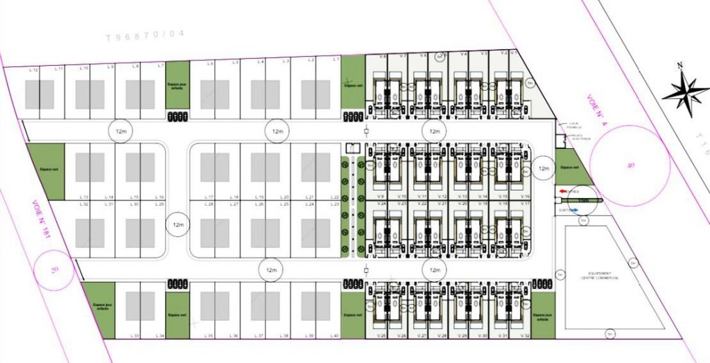
Situé sur 5 hectares, L’Orée d’Atlas est un projet résidentiel et commercial moderne qui allie confort, design et praticité. Avec ses villas haut standing, ses terrains constructibles et son centre commercial exclusif, il offre un cadre de vie exceptionnel, idéal pour les familles comme pour les investisseurs.

Nos Villas Haut Standing

Des espaces conçus pour votre confort

Les 52 villas du projet L’Orée d’Atlas proposent des surfaces à partir de 283 m², pensées pour offrir un cadre chaleureux et fonctionnel.
Chaque villa bénéficie d’un jardin privatif, d’une piscine, ainsi que d’un roof top ensoleillé avec pergola et barbecue.

Des intérieurs élégants et modernes

  • Rez-de-chaussée : salon spacieux, salle à manger, cuisine équipée Bosch, salle d’eau invités, accès direct au jardin.

  • Étage : suite parentale avec dressing, 2 chambres supplémentaires et 2 salles de bains équipées de matériaux haut de gamme.

  • Roof top : pergola, espace détente, barbecue et pré-installation jacuzzi.

Image matériaux haut de gamme - L'Orée d'Atlas

Menuiseries extérieures haut de gamme

Les profilés en aluminium Confort 300DD, fournis par Aluminium du Maroc, assurent une étanchéité parfaite et une résistance mécanique optimale, conformément aux normes en vigueur. La finition RAL noir mat confère une esthétique moderne et élégante, tandis que le double vitrage garantit une isolation thermique et phonique de qualité supérieure.

Porte d’entrée pivotante

La porte d’entrée pivotante, résistante au feu (PCF), allie sécurité renforcée et design contemporain. Habillée en bois, elle est équipée d’une serrure à cylindre à trois points de fermeture et d’une poignée type bâton de maréchal, offrant à la fois confort et protection.

Portes intérieures ouvrantes

Les portes intérieures ouvrantes, aux dimensions définies par l’architecte, sont dotées de charnières invisibles en acier noir et de quincaillerie en aluminium thermo-laqué noir mat, assurant une finition soignée et une durabilité accrue.

L'emplacement

Emplacement Idéal à Marrakech

Profitez d’une localisation stratégique, à proximité des lieux incontournables de Marrakech :

  • 9 km de l’aéroport international de Marrakech – seulement 12 minutes en voiture.

  • 12 km de Guéliz – accessible en 13 minutes.

  • 9 km de la célèbre place Jamaa el-Fna – 12 minutes pour rejoindre le cœur de la médina.

  • Moins de 10 minutes du futur Mall of Marrakech, qui sera le plus grand centre commercial d’Afrique.

Cet emplacement unique vous permet de rester proche de tout en profitant d’un environnement calme et prestigieux.

Découvrez les villas

Des villas conçues pour votre confort

Retour en haut